Mieszkanie na sprzedaż

Kraków, Prądnik Czerwony, Ugorek, Meissnera
Dodaj do notesu Dodane

Informacje

Cena
679 000 zł
Numer oferty
389170235
Typ transakcji
Sprzedaż
Powierzchnia
43 m2
Cena za m2
15 790,70 zł / m2
Liczba pokoi
2
Piętro
7/10
Typ rynku
wtórny
Rok budowy
1980
Zabezpieczenia
drzwi / okna antywłamaniowe, domofon / wideofon
Informacje dodatkowe
piwnica, winda, oddzielna kuchnia
Materiał budowy
żelbet
Media
telewizja kablowa

Opis nieruchomości

Kraków, Ugorek - ul. Meissnera mieszkanie 2 pokojowe po  remoncie. Meble w cenie, wolne od zaraz. 

OPIS MIESZKANIA

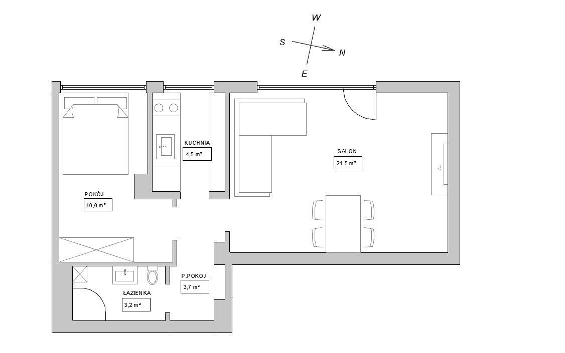
Do sprzedania dwupokojowe mieszkanie o powierzchni 43 m2 położone na siódmym piętrze w 10-piętrowym budynku wybudowanym w 1980 roku. Składa się z:
- pokoju dziennego (21,5 m2),
- oddzielnej jasnej kuchni (4,5 m2),
- sypialni (10 m2),
- łazienki (3,2 m2),
- przedpokoju (3,7 m2).
Mieszkanie posiada balkon francuski z widokiem na panoramę Krakowa.

Mieszkanie jest w bardzo dobrym stanie, po generalnym remoncie. Kuchnia zabudowana ze sprzętem AGD. Łazienka z kabiną prysznicową. Okna plastikowe wychodzą na stronę zachodnią.

Ogrzewanie i ciepła woda miejskie. Czynsz wynosi 600 zł. Do mieszkania przynależy piwnica.

Stan prawny: spółdzielcze własnościowe prawo.

Budynek wyposażony w windę. Przed blokiem miejsca parkingowe dla mieszkańców.

LOKALIZACJA

Atrakcyjna lokalizacja. W niewielkiej odległości znajduje się centrum handlowe Krokus, galeria handlowa Serenada, Park Wodny, Multikino, Castorama, Obi, hala widowiskowo-sportowa Tauron Arena, galeria Krakowska, liczne centra biurowe (m. in. Capgemini, Quattro Business Park, Tertium Business Park, Alma, O3 Business Campus, Vinci, Mogilska Office, Fabryczna Office Park) oraz uczelnie (m. in. AWF, Politechnika Krakowska, Uniwersytet Ekonomiczny). W pobliżu znajduje się również Park Lotników Polskich z placami zabaw, skateparkiem i ścieżkami do biegania i jazdy rowerem.

KOMUNIKACJA

W odległości kilku minut pieszo znajdują się przystanki komunikacji miejskiej:
- \"Tauron Arena Wieczysta\" - linie tramwajowe nr: 4, 5, 9, 10, 49, 52, 64, 75 oraz linie autobusowe nr: 124, 128, 424, 664.
Obecnie trwają prace związane z budową linii tramwajowej do Mistrzejowic, która będzie przebiegać w bliskim sąsiedztwie.

Zapraszamy na prezentację.
ABC DOM Biuro Nieruchomości Al. 29 Listopada 75/4, Kraków, Pośrednik odpowiedzialny licencja 4492. tel. 12/633-39-33, 605-44-88-41

Kontakt do opiekuna oferty: Grzegorz tel.605-448-831

Ogłoszenie nie stanowi oferty w rozumieniu Kodeksu Cywilnego, dane mają charakter informacyjny i mogą ulec zmianie.

Oferta wysłana z programu IMO dla pośredników.

Zobacz na mapie

Zobacz na mapie

Kontakt

Ta strona jest chroniona przez reCAPTCHA i Google Polityka prywatności i Warunki korzystania z usługi.